Lot 0201 3719 Sandreed Street | New Homes for Sale in Dacono, CO

Est. Completion:
Move-in Ready!
The Marion | Residence 39208 | Sweetgrass

Single Family Home

Est. Loading... /mo

$736,485

Buy Now Est. Completion:
Move-in Ready!
  • Square Footage

    2,420 sq ft

  • Bedrooms

    4 beds

  • Bathrooms

    3 baths

  • Number of Floors

    2 floors

  • Parking Bays

    2 bays

Sweetgrass
3719 Sandreed Street,
Dacono, CO 80514

phone icon 303-558-7346
watch icon Sales Office Hours

Sales Office Hours

Monday 10:00 AM - 06:00 PM

Tuesday 10:00 AM - 06:00 PM

Wednesday 12:00 PM - 06:00 PM

Thursday 10:00 AM - 06:00 PM

Friday 10:00 AM - 06:00 PM

Saturday 10:00 AM - 06:00 PM

Sunday 11:00 AM - 06:00 PM

Overview

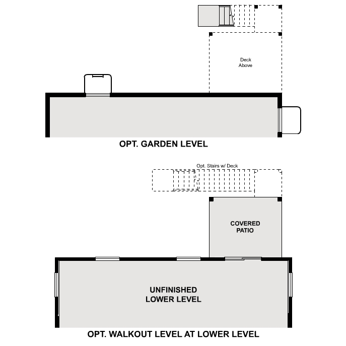
As you walk through the long foyer, the Marion bestows productivity, relaxation and entertainment on all sides. In a linear fashion, the great room, the dining area, and the kitchen are accompanied by a kitchen island with easy access to the patio. 

Adjacent to the staircase, a delightful private bedroom, a full bath, and a welcoming study create an undisturbed haven. Upstairs, two bedrooms and a loft share a full bath, while the opulent owner's suite awaits its own private wing. Abundant natural light streams through the large window, illuminating the walkthrough private bathroom that leads to a generously sized walk-in closet designed for two.

 

*Prices, plans, and terms are effective on the date of publication and subject to change without notice. Map is not to scale. Square footage/dimensions shown is only an estimate and actual square footage/dimensions will differ. Buyer should rely on his or her own evaluation of usable area. Photos may not be of exact home. Depictions of homes or other features are artist conceptions. Hardscape, landscape, and other items shown may be decorator suggestions that are not included in the purchase price and availability may vary. Plans to build out this neighborhood as proposed are subject to change without notice. Visit centurycommunities.com for more details.© 2025 Century Communities, Inc.

Interactive Floor Plan

Explore more of what this plan has to offer!

Explore homesites at this community!

Get a feel for the neighborhood and find the right homesite for you.

Community Information

Sweetgrass

Explore exceptional new single-family homes at Sweetgrass by Century Communities! With an inspired lineup of floor plans—boasting contemporary open-concept layouts and desirable included features—this exciting new community offers something for everyone. Choose between ranch-style and two-story homes. You'll also love a prime location near shopping and dining, with quick access to the Front Range I-25 corridor and Colorado National Speedway.

Community Amenities

  • Parks & Playgrounds
  • Community Pool
  • Proximity to Golf Courses 
  • Walking & Biking Trails 

Schools

Residents of Sweetgrass will be served by the Weld County School District No. RE-8. 

 

For more information, please visit https://www.weld8.org/ or call 303.857.3200.

  • Fort Lupton High School | 530 Reynolds Street, Fort Lupton, CO 80621 | 303.857.7100
  • Kenneth Homyak PK- 8 Charter School | 3100 Sweetgrass Parkway, Dacono, CO 80514 | 303.857.3380

Shopping and Dining

  • Walmart Supercenter
    Firestone, 80504
    Grocery Store
  • King Soopers
    Frederick, 80504
    Grocery Store
  • Safeway
    Frederick, 80504
    Grocery Store
  • Natural Grocers
    Longmont, 80501
    Organic Grocery Store
  • Costco
    Thornton, 80234
    Bulk Discount Store
  • Sprouts Farmers Market
    Longmont, 80503
    Grocery Store
  • The Longtail Kitchen
    Firestone, 80504
    Thai Restaurant
  • The Hungry Toad
    Frederick, 80504
    American Restaurant
  • Los 3 Garcias
    Firestone, 80504
    Mexican Restaurant
  • The Rustic Grill
    Frederick , 80504
    Modern American Restaurant
  • Gino’s Italian Restaurant
    Longmont, 80501
    Italian Restaurant
  • Smokin' D's BBQ
    Frederick , 80530
    BBQ Restaurant

Homeowner reviews

See for yourself what our Century Communities homeowners are saying about their dream homes!

Request Information

Do You Currently Rent or Own
I'm a realtor required
Schedule a Tour
By clicking “Submit'” you consent to receiving calls and text messages from Century Communities, our affiliates, marketing partners and sales agents at the phone number provided, including messages sent using an automated system. Century Communities' privacy policy can be found at www.centurycommunities.com/privacy-policy. You understand that by providing your information to us, we will reach out to you via the information you provide us. Standard text message rates apply. Users can opt out of text messages at any time by texting STOP. ©2025 Century Communities, Inc.

 

This site is protected by reCAPTCHA.