Paisley | New Homes for Sale in Magnolia, TX

Single Family Home

Est. Loading... /mo

$284,990

  • Square Footage

    1,614 sq ft

  • Bedrooms

    3 beds

  • Bathrooms

    2 baths

  • Number of Floors

    1 floor

  • Parking Bays

    2 bays

Audubon
39035 Heronry Way,
Magnolia, TX 77354

phone icon 281-698-1132
watch icon Sales Office Hours

Sales Office Hours

Monday 12:00 PM - 06:00 PM

Tuesday 10:00 AM - 06:00 PM

Wednesday 10:00 AM - 06:00 PM

Thursday 10:00 AM - 06:00 PM

Friday 10:00 AM - 06:00 PM

Saturday 10:00 AM - 06:00 PM

Sunday 12:00 PM - 06:00 PM

Overview

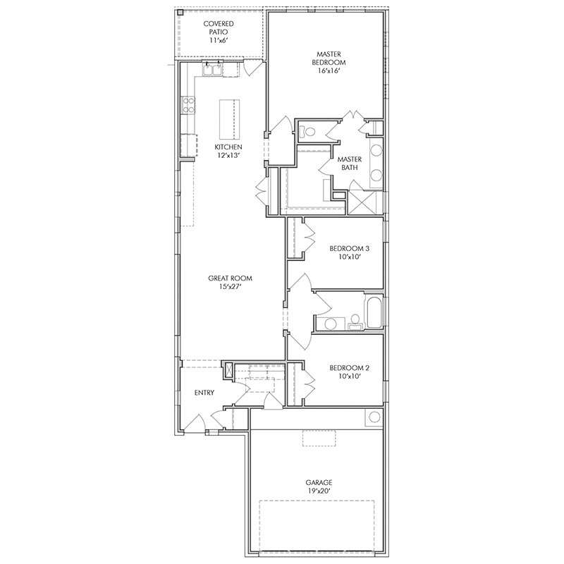
The Paisley floor plan is a great option for a modern, easy-living home! The open concept layout really makes the space feel larger and more connected, which is ideal for hosting or just making everyday life more comfortable. Having the great room, kitchen, and dining area all in one flow makes it feel so spacious. The primary suite is massive and includes a private bath with dual vanity sink. Towards the front of the home are two bedrooms and a shared bath.

Floor Plan

Available Homes

Buy online today!

Lock in your dream home through our convenient and completely online Buy Now process.

  • OPEN-CONCEPT FLOOR PLAN
    SPACIOUS PRIMARY SUITE

    15419 Park Perch Place | Lot 070352

    Est. Completion:
    May. Move In.
    Paisley

    Single Family Home

    Est. Loading... /mo
    $299,900
    • Square Footage 1,614 sq-ft
    • Bedrooms 3 br
    • Bathrooms 2 ba
    • Parking Bays 2 bays
  • center kitchen island
    spacious primary suite

    15454 Park Perch Place | Lot 070333

    Est. Completion:
    Jun. Move In.
    Paisley

    Single Family Home

    Est. Loading... /mo
    $302,900
    • Square Footage 1,614 sq-ft
    • Bedrooms 3 br
    • Bathrooms 2 ba
    • Parking Bays 2 bays

Explore homesites at this community!

Get a feel for the neighborhood and find the right homesite for you.

Community Information

Audubon

Welcome to Audubon, a new master-planned community in the heart of Magnolia. Showcasing a range of single and two-story floor plans with modern, open layouts and exciting included features, Audubon offers a home for every taste and lifestyle.  Inspired by the art of nature, every home is within a 5-minute walk of a trail, path or park. You’ll also love the abundance of local activities—including a thriving downtown district, the High Meadow Ranch Golf Club, scenic parks, the Texas Renaissance Festival, popular eateries, year-round events and more.  Located 51 miles from Houston, Audubon boasts proximity to the TX-249 Toll Road, putting dining, entertainment, and retail within easy reach. Future amenities include walking trails, creeks, an on-site school, and more. 


Community Amenities

  • Parks & Playgrounds
  • Walking Trails
  • Resort Style Pool
  • Splash Friendly Water Features

Schools

Children will zone to Magnolia ISD schools. For more information and additional details visit Magnolia ISD

  • Audubon Elementary School
  • Bear Branch Intermediate School
  • Bear Branch Jr. High School
  • Magnolia High School

Shopping and Dining

  • H-E-B
    Magnolia, TX 77354
  • Target
    Magnolia, TX 77354
  • Kroger
    Magnolia, TX 77354
  • The Woodlands Mall
    The Woodlands, TX 77380
  • Chili's
    Magnolia, TX 77354
  • Julio's Mexican Grill
    Magnolia, TX 77354
  • Zanti Cucina Italiana
    Magnolia, TX 77354
  • Brick & Brews
    Magnolia, TX 77354

Homeowner reviews

See for yourself what our Century Communities homeowners are saying about their dream homes!

Request Information

Do You Currently Rent or Own
I'm a realtor required
Schedule a Tour
By clicking “Submit'” you consent to receiving calls and text messages from Century Communities, our affiliates, marketing partners and sales agents at the phone number provided, including messages sent using an automated system. Century Communities' privacy policy can be found at www.centurycommunities.com/privacy-policy. You understand that by providing your information to us, we will reach out to you via the information you provide us. Standard text message rates apply. Users can opt out of text messages at any time by texting STOP. ©2025 Century Communities, Inc.

 

This site is protected by reCAPTCHA.